ĐỒ ÁN CHI TIẾT MÁY.
Đề Tài : Tính Toán & Thiết Kế HGT Phân Đôi Cấp Chậm.
Bộ Truyền : Đai.
Đề Tài : Tính Toán & Thiết Kế HGT Phân Đôi Cấp Chậm.
Bộ Truyền : Đai.
![]() |
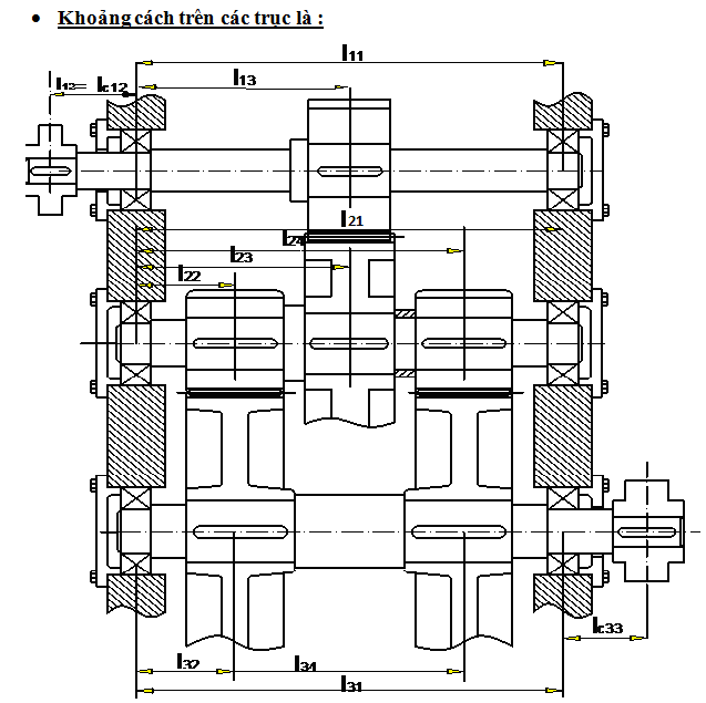
| HGT Phân Đôi Cấp Chậm. |
Tags:
đồ án chi tiết máy
HGT-phan-doi-cap-cham
họp gian toc
họp gian toc banh rang tru
phan doi cap cham
phân đôi cấp chậm




